Bhubaneswar, Odisha

Plot no- N5/120, IRC Village, Jayadev Vihar

+91-9090336999

0674-3102949

subhasish@spiredimensions.com

spiredimensions@gmail.com

Bringing Great Design

Categories

BDA Or BMC Empanelled

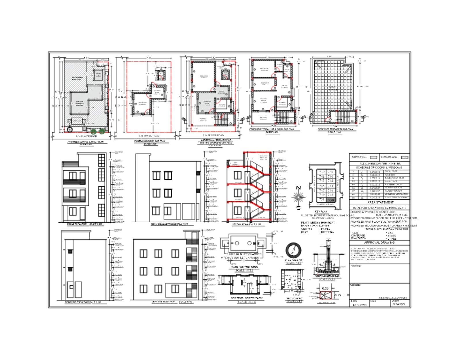
Spire Dimensions specializes exclusively in House plan approval services in all over Odisha , ensuring complete legal compliance and future security for your property. We provide Odisha government–approved building plan solutions in strict accordance with BDA, BMC, and CDA regulations, handling the entire approval process with accuracy and transparency. From residential and commercial building plan approval to layout scrutiny, bulding ,appartment drawings, documentation, and authority coordination, our expert team ensures every plan meets Odisha building bye-laws, zoning norms, and safety standards. With professional verification and authority-approved submissions, Spire Dimensions delivers approved, compliant, and hassle-free building plan sanctions across Bhubaneswar and major regions of Odisha.

Testimonials

Our Customer Words

Partha Behera

Bhubaneswar

Best place for architecture and interior work.

Ajay Kumar

Bhubaneswar

One of the best architecture office in Bhubaneswar

Bhitik

Bhubaneswar

Good team of designing experts and architects.

Contact Details

Get In Touch With Us

Make Appointment

Leave your information here and get reply from our expert in 24 hours, don’t hesitate to ask.

Book Your Appointment